| Detalles | Información |
|---|---|
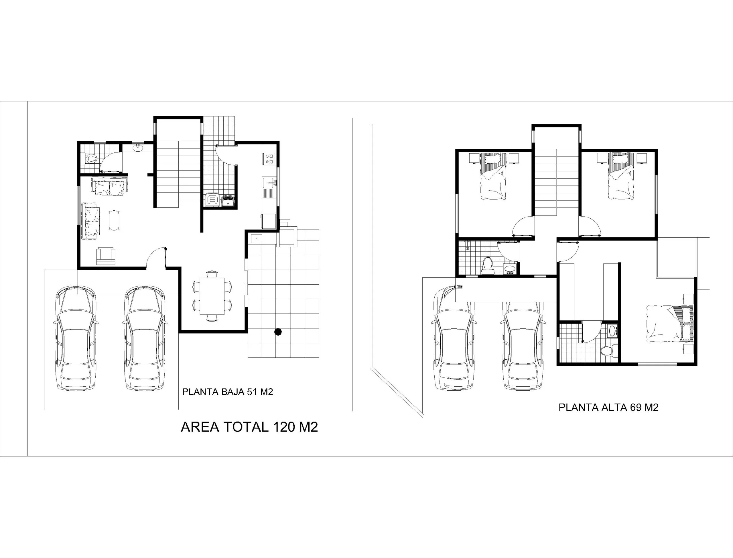
| Precio Total Estimado, sin gastos Bancarios | 417.360.000 |
| M² de Construcción | 120,00 |
| Precio por M² | 3.478.000 |
| Cobertura Geográfica | Asunción, Gran Asunción, Pedro Juan Caballero |
| Dormitorios | 3 |
| Baños | 3 |
| Dimensión Terreno Mínimo Requerido | 200 |
| Descripción General | Duración de obra: 6 meses |
